Sarebbe piaciuto a Henry David Thoreau questo cottage sulle rive di Lac Plaisant, nel Québec, completato lo scorso anno da Karl Choquette, Marie-Claude Hamelin, Étienne Sédillot e Loukas Yiacouvakis dello studio di Montréal Yh2: una semplice abitazione di legno – 140 mq la superficie utile – progettata per abitare in vera comunione con la natura del luogo.
L’uso del legno è dichiarato sia fuori sia all’interno del cottage, dove la struttura a telaio a ‘navata’ unica caratterizza tutti gli ambienti.

Pannelli di legno di cedro bianco che rivestono con continuità il tetto e le pareti fanno del cottage un volume puro, inserito su fondazioni non visibili al centro di una piccola radura circondata da latifoglie ad alto fusto che d’estate schermano il sole mentre d’inverno, privi del fogliame, lasciano penetrare all’interno, attraverso tre ampie vetrate a tutt’altezza, i raggi bassi all’orizzonte.

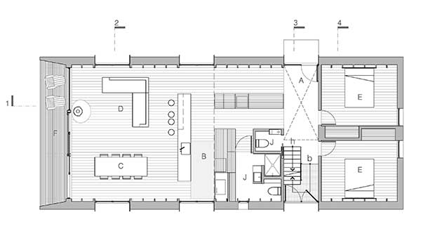
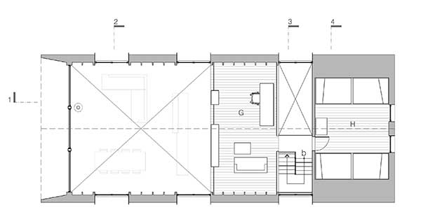
Di modeste dimensioni, l’abitazione, che pure offre 12 posti-letto – oltre alle due master bedroom al piano terra, l´ammezzato al piano superiore è attrezzato come una sorta di camerata comune – si confronta con gentilezza e semplicità con il lago a sud.
È la traduzione nello spazio di un preciso modo di pensare e di intendere la vita.

Crediti
- Realizzazione Cottage per le vacanze
- Luogo Saint-Elie de Caxton, Quebec, Canada
- Superficie 140 mq
- Anno 2017
- Progetto architettonico Yh2
- Team di progettazione Karl Choquette, Marie-Claude Hamelin, Étienne Sédillot, Loukas Yiacouvakis,
- Impresa di costruzioni Construction Daniel Matteau
- Foto Francis Pelletier
![]() |
|
La pianta del piano terra e, sotto, del piano superiore: A) ingresso; B) cucina; C) sala da pranzo; D) soggiorno; E) camere da letto; F) terrazzo; G) studio; H) al piano superiore, letti aggiuntivi |
![]() |

