+1 Cinema, riaperta a Parigi dopo la riqualificazione di Loci Anima La Géode
Cinema, riaperta a Parigi dopo la riqualificazione di Loci Anima La Géode
Cinema, riaperta a Parigi dopo la riqualificazione di Loci Anima La Géode
Cinema, riaperta a Parigi dopo la riqualificazione di Loci Anima La Géode
Riqualificata dallo studio Loci Anima, guidato da Françoise Raynaud, è stata riaperta a Parigi, nel Parc de la Villette, a poca distanza dalla Cité des Sciences et de l’Industrie, La Géode, la grande cupola riflettente – sono 6.433 i triangoli di acciaio inossidabile che la ricoprono – che accoglie una delle più grandi sale cinematografiche emisferiche del mondo.

Inaugurata nel 1985 su disegno di Adrien Fainsilber, La Géode è un capolavoro di ingegneria e tecnica: all’interno di un cubo brutalista, un solo pilastro di cemento armato di 4 metri quadrati di spessore, sfidando la gravità regge una struttura a forma di fungo rovesciato che accoglie l’anfiteatro, originariamente con 400 posti a sedere rivolto verso uno schermo Imax immersivo.
L’intervento di Loci Anima ha valorizzato lo spettacolo di questo capolavoro brutalista – una vera e propria cattedrale di cemento – trasformando l’intero edificio in un’esperienza completamente immersiva. Già prima di entrare, la facciata dicroica che gioca con la luce e i suoi riflessi invita i visitatori nel regno dell’illusione cinematografica.

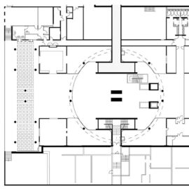
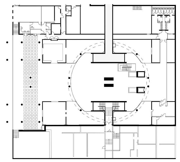
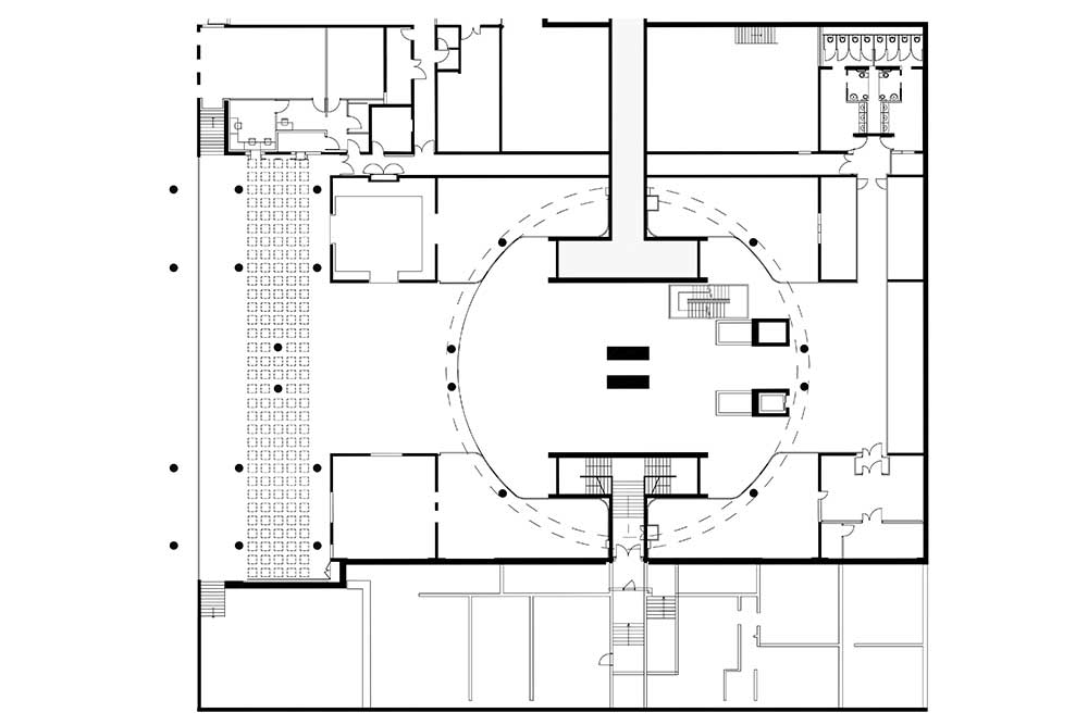
All’interno, un vasto spazio circolare con un’immagine proiettata a 360° sulle pareti che valorizza il patrimonio architettonico funge da foyer.
Due ascensori panoramici e una scala fluttuante di 11 metri attraversano l’edificio, collegando l’atrio all’ingresso della sala. La capienza è stata ridotta a 286 posti su misura, con sei diverse inclinazioni per il massimo comfort degli spettatori.

Il nuovo schermo emisferico di 1.000 metri quadrati e 26 metri di diametro, composto da 559 pannelli di alluminio microforati e progettato appositamente per un nuovo proiettore laser 4K, completato da un sistema audio Imax 6.0, ricopre quasi interamente la sala.
Prima dell’inizio delle proiezioni, la cupola geodetica stessa diventa una finestra sul Parc de la Villette.

Crediti
- Località Parigi, 19° arrondissment
- Committenti Pathé Cinémas, Universcience (proprietà)
- Progetto architettonico Loci Anima
- Team di progetto Françoise Raynaud (architetto principale); Xavier Maunoury e Vincent Laplante (direttori di progetto); Halima Temam (direttore lavori); Elie François (assistente di cantiere)
- Ingegneria strutturale Khephren
- Facciate Bollinger
- Impianti Alto
- Economia del progetto Axio
- Acustica Peutz
- Consulente sicurezza Studio Fahrenheit
- Lighting design: 8’18”
- Video mapping e suono Moment Factory
- Coordinamento lavori Batscop
- Superficie 3.000 m²
- Costo di costruzione 11 milioni di euro
- Cronologia 2022-2024
Loci Anima

Il nome esprime già l’approccio al progetto di Françoise Raynaud, che ha fondato lo studio di Parigi nel 2005, una filosofia che lei chiama ‘animismo post-industriale’, alla ricerca dello spirito vitale che avvolge ogni cosa. Per questo i lavori sono anche in permanente dialogo con il mondo vegetale, con la creazione di spazi urbani capaci di ospitare vegetazione e specie animali.
Tra i numerosi progetti di Loci Anima i quartieri urbani di Pont d’Issy e A4-Est a Boulogne-Billancourt, la biblioteca-emeroteca Alpha di Angoulême e il cinema Les Fauvettes a Parigi.
Loci Anima conta 25 architetti e un ufficio a New York, guidato da Jonathan Thornhill.




