Bottière Chénaie, mixed-use di Kaan Architecten a Nantes
Bottière Chénaie, mixed-use di Kaan Architecten a Nantes
Bottière Chénaie, mixed-use di Kaan Architecten a Nantes
Bottière Chénaie, mixed-use di Kaan Architecten a Nantes
Bottière Chénaie, mixed-use di Kaan Architecten a Nantes
Bottière Chénaie, mixed-use di Kaan Architecten a Nantes
Bottière Chénaie, mixed-use di Kaan Architecten a Nantes
Bottière Chénaie, mixed-use di Kaan Architecten a Nantes
Bottière Chénaie, mixed-use di Kaan Architecten a Nantes
Bottière Chénaie, mixed-use di Kaan Architecten a Nantes
Bottière Chénaie, mixed-use di Kaan Architecten a Nantes
Il progetto multifunzionale di KAAN Architecten pensato per Bottière Chénaie, il nuovo quartiere nel quadrante nord-est di Nantes, in Francia, è la proposta vincitrice di un concorso internazionale indetto nel 2013.
Da poco ultimato, l’edificio è parte di un progetto urbano più ampio ideato da Jean-Pierre Pranlas-Descours in collaborazione con lo studio di paesaggio Atelier Bruel-Delmar.


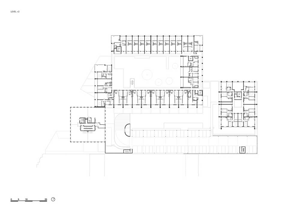
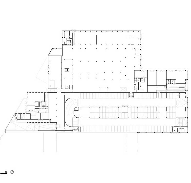
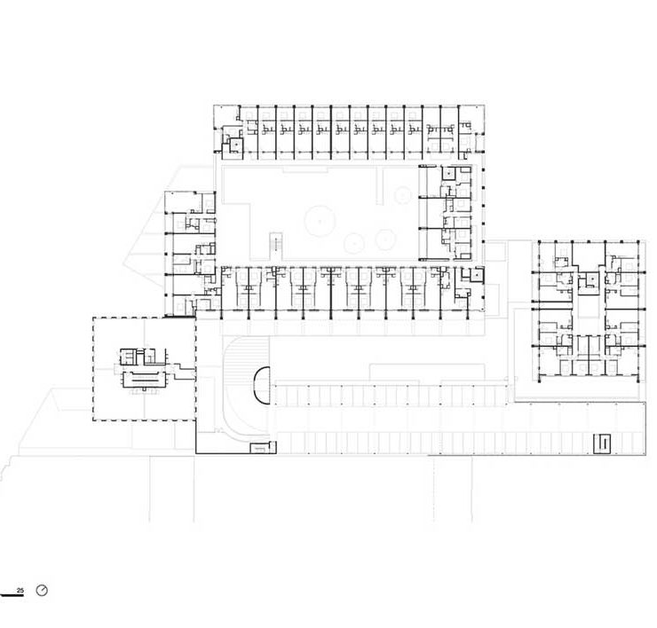
Estremamente compatto, l’architettura di KAAN Architecten presenta un basamento multifunzionale composto da spazi commerciali, un supermercato e un parcheggio. Al di sopra si elevano due blocchi residenziali, entrambi di cinque piani, per un totale di 172 appartamenti. Il primo volume è esclusivamente dedicato alle residenze a libero mercato, mentre il secondo ospita alloggi in social housing.
A nord-ovest, il volume residenziale principale si sviluppa attorno a un ampio cortile interno alberato, dove alcune passerelle esterne si affacciano sul paesaggio circostante e danno accesso agli appartamenti a doppia esposizione.
Ispirata alla tradizionale architettura residenziale olandese, questa soluzione distributiva viene applicata al contesto francese per minimizzare le connessioni verticali e per creare molteplici configurazioni abitative — dagli spazi esterni privati alle logge con zone living. Inoltre, queste irregolarità nell’orientamento dell’edificio sono accompagnate da alcuni coni di luce a tutta altezza, in grado di diffondere la luce naturale fino ai piani inferiori: una rottura verticale che genera spazi informali e stimola l’interazione fra i residenti.
Verso est, il secondo volume ospita 39 alloggi popolari che, a seconda della loro posizione, godono di un doppio orientamento, di diverse tipologie di logge e di affacci verso il cortile alberato o la città.
Infine, a sud-ovest, il blocco per uffici, organizzato attorno a un nucleo centrale, rafforza la giustapposizione dei diversi volumi, completando il nuovo paesaggio urbano.

Monumentale nella sua concretezza, la semplice volumetria di Bottière Chénaie è accompagnata da una scelta coerente di materiali di rivestimento.
Monolitico al primo sguardo, il progetto è arricchito da facciate definite da una struttura regolare a telaio 60×60 cm in cemento prefabbricato che permette di avere ampie superfici trasparenti e peculiari angoli completamente vetrati.
La solidità dell’edificio ha consentito inoltre di ottimizzare gli standard economici e ambientali durante tutto il processo costruttivo.
Nel lato rivolto verso il cortile e le passerelle, le superfici verticali sono rivestite da un legno grigio, che ricorda la dimensione domestica e rafforza il doppio legame tra esterno e interno elevando lo spazio pubblico a cuore pulsante dell’intero progetto.


Crediti di progetto
Architettura: KAAN Architecten (Kees Kaan, Vincent Panhuysen, Dikkie Scipio)
Architetto locale: Atelier Forny, Nantes
Urbanistica: Pranlas-Descours Architect & Associates, Atelier Bruel Delmar
Cliente: OCDL – Groupe Giboire
Area di progetto: 17.200 mq
Impresa costruttrice: Angevin Entreprise Générale, Rennes
Consulente strutture, finanziario, Impresa impianti W+E, ingegneria strutturale: AIA Ingenierie, Nantes
Antincendio: Socotec, Nantes
Consulente impianti e acustica: SerdB – Groupe Gamba, Saint Sébastien-sur-Loire
Strutture: Ouest Structure, Rennes
Cantiere: Charrier TP SUD, Bouguenais
Scavi: Angevin SAS, Rennes; Guillerm, Plouvorn
Aree verdi: Jaulin, Carquefou
Rivestimento facciata: Diagonal Façades, Chelles; Engie Axima, Bouguenais
Infissi esterni: Alu Rennais, La Chapelle Des Fourgeretz; Filmatec, Saint Jacques de La Lande
Porte e finestre in legno: Dupré, Chaze-Henry
Parquet: Art Co Parquet, Cholet
Pavimenti esterni acustici: Atlantic Sol, Saint-Nazaire
Soffitti: C.R.L.C, RennesPitture e rivestimenti murari: Styl’deco, Bouaye; Goni, Chantepie; DBL, Coueron
Ascensori: Schindler, Velizy Villacoublay
Elettricità: SATI, La Meziere