Doppia pelle in laterizio nel progetto direzionale di Tropical Space in Vietnam
L’architettura nei climi tropicali è sempre associata alla pioggia, all’intensa luce del sole e alla ricerca di ventilazione.
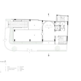
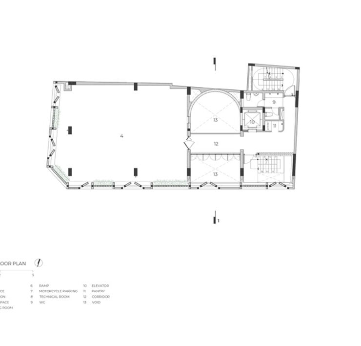
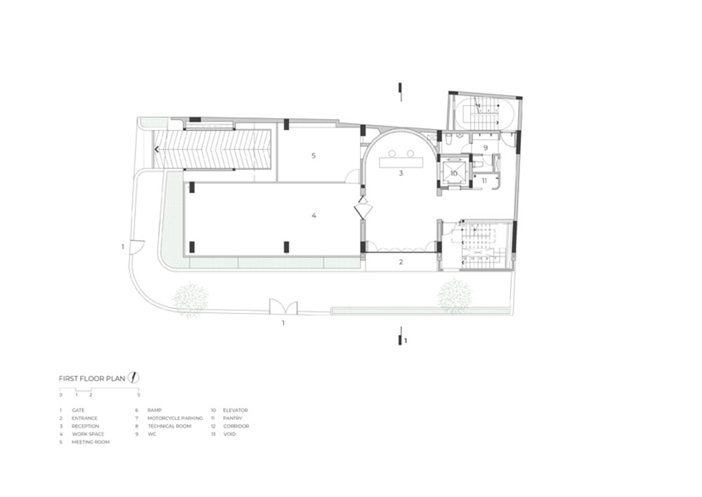
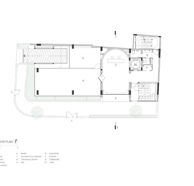
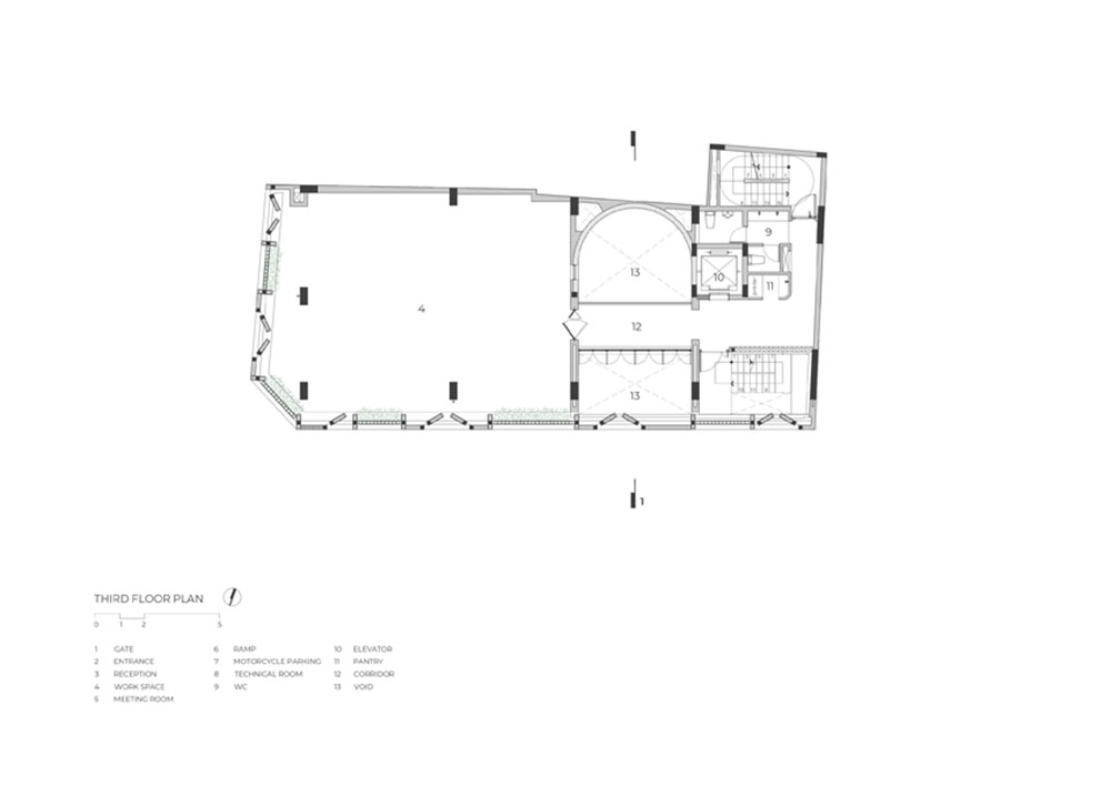
Se il clima favorisce l’ingresso della vegetazione negli interni e l’annullamento delle barriere tra interno e esterno, d’altra parte è indispensabile mettere in atto strategie passive per proteggere gli ambienti dal calore e favorire la ventilazione. Strategie messe in campo dallo studio vietnamita Tropical Space in Premier Office, un edificio per uffici di 7 piani fuori terra situato in una strada tranquilla di Ho Chi Minh City, nel distretto di Tan Binh.

Il team di progettazione aspirava a creare un edificio in grado di massimizzare l’apporto di luce naturale senza subire l’impatto negativo della luce solare diretta. Per favorire il comfort degli utenti, lo studio di architettura guidato da Nguyễn Hải Long e Trần Thị Ngụ Ngôn ha realizzato ambienti luminosi e ben ventilati con un involucro a doppio strato schermato, esternamente, da pannelli di mattoni disposti in maniera sfalsata, in modo da lasciar filtrare luce e aria. In parte i pannelli sono fissi e in parte movibili, come se fossero speciali infissi schermanti in laterizio.
Gli ambienti interni invece sono separati da porte scorrevoli in vetro e profili in alluminio.

L’involucro in laterizio riveste un esoscheletro di cemento armato. Le schermature in mattoni perforati ruotano con un angolo di 45 gradi creando uno strato cuscinetto che riduce l’impatto della luce solare e crea ombre in movimento. Lo strato tampone, con gli alberi che vi si intrecciano, contribuisce a purificare l’aria e scherma i raggi solari diretti.

All’interno, le aree funzionali sono separate da un vuoto centrale a tutt’altezza che riceve luce dall’alto e crea un ‘effetto camino’ per cui l’aria più calda sale verso l’alto, contribuendo al raffreddamento degli ambienti. Su un lato del vuoto centralesi affacciano gli uffici, con le facciate che si aprono per catturare la luce del sole e il vento, mentre l’altro lato ospita i collegamenti verticali e gli ambienti di servizio.
I due blocchi sono collegati da passerelle aeree, che contribuiscono alla sensazione di ampiezza dello spazio e di luce che permea il progetto.

Secondo Tropical Space infatti anche i vuoti, così come gli alberi, la luce, i mattoni e persino la pioggia possono creare un senso di apertura e libertà, stimolare la creatività e rigenerare l’energia di chi vi lavora.