Jonas, l’edificio-paesaggio di Orange Architects e Felixx a IJburg
Jonas, l’edificio-paesaggio di Orange Architects e Felixx a IJburg
Jonas, l’edificio-paesaggio di Orange Architects e Felixx a IJburg
Jonas, l’edificio-paesaggio di Orange Architects e Felixx a IJburg
Jonas, l’edificio-paesaggio di Orange Architects e Felixx a IJburg
Nel cuore di IJburg, una delle isole artificiali di Amsterdam, Jonas è un nuovo edificio residenziale con strutture commerciali e sociali, insieme a un vasto spazio pubblico.
Commissionato da Amvest, il progetto di architettura è di Orange Architects che lo ha sviluppato in collaborazione con Felixx Landscape Architects and Planners per il paesaggio, Abt e Ballast Nedam West.

Jonas incarna l’anima del luogo e la rende visibile. Insieme all’ambiente circostante, l’edificio forma una sorta di paesaggio fatto di una concatenazione di luoghi speciali, e offre al quartiere un interno pubblico animato e diversificato.
Felixx ha progettato il paesaggio collettivo come parte integrante del complesso. A IJburg gli edifici residenziali sono inseriti in un ricco insieme di spazi pubblici: grandi viali e canali al centro, spiagge e parchi naturali ai margini. Jonas si aggiunge al panorama del quartiere con un insieme collegato di spazi esterni e interni.

Nella parte anteriore dell’edificio un piazzale pubblico è delimitato da un padiglione in legno con gradini, che funge da parco giochi tridimensionale. Il padiglione segna anche l’ingresso al parcheggio e può essere utilizzato come tribuna per proiezioni di film o eventi all’aperto.

L’edificio con le sue aperture irregolari crea l’impressione che le finestre siano ondulate lungo la banchina. La facciata, rivestita in zinco prepatinato, non tocca terra ma rimane sollevata. Il volume non è rettangolare ma a forma di diamante. Ciò lo rende allo stesso tempo familiare e straniante, scultoreo e razionale, riconoscibile e nuovo.

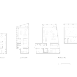
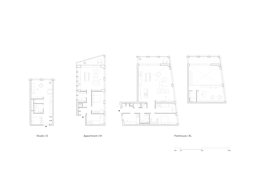
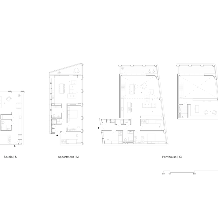
Il concept spaziale degli interni si basa sul modo in cui sono costruite le tradizionali navi in legno: uno scheletro costituito da una serie di capriate disposte in fila, che formano la struttura principale. Questo ha consentito di ricavare grandi cavità nel volume e il programma abitativo richiesto, per un totale di 273 appartamenti, è contenuto all’interno della “pelle” dell’edificio.

Il paesaggio penetra così in profondità all’interno. Un percorso comune, progettato come un canyon (o come l’interno della balena di Giona, da cui il nome), si estende attraverso l’edificio, collegando insieme il programma pubblico e collettivo, tra cui il cinema, la spiaggia e il bar sul tetto. Le strutture commerciali nel basamento forniscono ulteriore dinamismo al piano terra e sulla banchina.

Oltre all’attenzione per la sostenibilità sociale, Jonas è ricco di elementi tecnicamente sostenibili. L’edificio è a energia zero grazie al campo fotovoltaico sul tetto. L’energia così prodotta viene utilizzata, tra l’altro, per gli impianti meccanici e il sistema di illuminazione.
Inoltre, il sistema di riscaldamento a bassa temperatura è collegato alla rete del teleriscaldamento di IJburg.

Il progetto aveva l’obiettivo di ridurre l’uso di materiali e a riutilizzare le materie prime. L’impatto ambientale dei materiali è stato un importante criterio di selezione e l’impiego di diverse materie prime è stato considerato in più occasioni durante il processo.
Il calcestruzzo, ad esempio, è certificato e almeno un quarto del granulato è costituito da materiale riciclato, ricavato ad esempio dai rifiuti edili. Sia all’interno sia all’esterno si è fatto ricorso all’uso di legno Douglas europeo.

Il progetto di paesaggio mira a rafforzare i valori ecologici dell’area. Ad esempio, è stata piantata la vegetazione autoctona, così come sono state adottate varie soluzioni per migliorare la qualità dell’acqua e per aumentare la biodiversità di flora e fauna.
L’acqua piovana, ad esempio, viene raccolta nel seminterrato e riutilizzata per lo scarico dei servizi igienici negli spazi pubblici e nelle unità commerciali al piano terra.

La vegetazione sul tetto rallenta il deflusso dell’acqua. Lo strato d’acqua in movimento sul tetto di vetro che illumina il canyon interno offre una piacevole esperienza percettiva e raffredda il vetro in estate. Il patio, dove sono piantati in piena terra alcuni alberi già adulti, è un luogo ombreggiato in cui ripararsi nelle calde giornate estive.