Chiusa verso l’intorno e aperta al paesaggio: la B House di studio ARW
Chiusa verso l’intorno e aperta al paesaggio: la B House di studio ARW
House B è un edificio residenziale unifamiliare progettato dallo studio ARW di Camillo Botticini e Matteo Facchinelli con l’obiettivo di integrarsi con il contesto, considerando imprescindibile il rapporto con la cornice collinare e il monte Maddalena, a ridosso della città di Brescia.
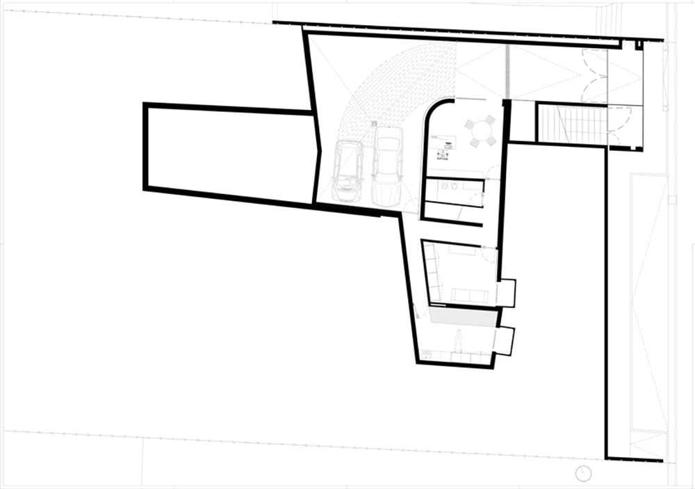
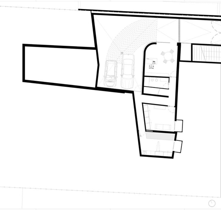
L’architettura si rivolge al paesaggio naturale conservando, grazie alle altezze ridotte del profilo, il rispetto della visuale collinare dalla strada. La casa presenta un impianto irregolare a “L”, dal carattere prevalentemente chiuso verso il lato strada e trasparente, aperto in direzione delle colline a ovest.

L’abitazione definisce una corte virtuale, il cui quarto vertice è costituito da un albero che ne chiude la forma. La disposizione valorizza, in rapporto alla distanza dai confini, la qualità dello spazio aperto verso la collina e si chiude rispetto alla strada in corrispondenza delle camere.
Come spiegano i progettisti: «L’architettura è un processo che integra luogo, volume, spazio, costruzione, materia e luce. Questi fattori sono intrinsecamente integrati e quindi inscindibili. L’intento del progetto è strettamente connesso a questa capacità di renderli significativi».

Il volume si compone di un piano interrato, con autorimesse, cantina, lavanderia e locali tecnici, e di un piano fuori terra collocato alla quota di 2,35 metri rispetto al livello medio del piano stradale adiacente. Quest’ultimo corrisponde dunque all’altezza media in cui si colloca la casa che risulta, naturalmente, più elevata rispetto alla carreggiata.
Il piano fuori terra si compone della zona giorno e della zona notte, distribuite nelle due ali dell’edificio. La zona giorno si compone di una cucina abitabile e di una grande area destinata a soggiorno e sala da pranzo, aperta verso la cornice paesaggistica.

Quattro i materiali impiegati: il vetro, che caratterizza la parte bassa dell’edificio, l’intonaco marrone scuro per le pareti, e l’alluminio della stessa gradazione per la copertura, cappello dell’edificio. Il colore, pur nella diversità materica, integra la forma e rende coerente il volume con il paesaggio.
Infine vi è il legno, utilizzato per le ante cieche e scorrevoli e per la porzione delle pareti verticali scavata sul lato est.

Crediti di progetto
Località Brescia
Committente Privato
Progettazione architettonica Camillo Botticini, Matteo Facchinelli (Botticini + Facchinelli ARW)
Gruppo di progetto Lucia Fanetti, Vittoria Zuliani
Consulente strutture Alessandro Bertozzi
Consulente progettazione impiantistica Itf ed elettrica Luca Fornoni
Imprese di costruzioni Cea costruzioni, Edil 97
Area totale di intervento 1.045 mq
Superficie costruita 231 mq
Completamento 2019
ARW

Il laboratorio di ricerca nato nel 2016 trasforma ogni specifica occasione in una riflessione e in un’affermazione sulle ragioni e sul senso dell’architettura. Sotto la guida di Camillo Botticini (a destra nella foto) e Matteo Facchinelli propone una ricerca che possa sintetizzare in forme architettoniche significative i problemi che l’abitare contemporaneo pone nelle sue diverse accezioni, dalla scala urbana a quello dell’oggetto.
L’architettura nasce infatti dalle relazioni con un determinato luogo e afferma, nella volontà di trasformarlo, una precisa di idea di spazio. Il confronto tra l’affermazione di un’idea e le condizioni del contesto genera le polarità in cui si colloca l’intervallo della trasformazione progettuale. Il paesaggio insediativo nella sua complessità diviene il materiale di riferimento: così la geografia, la storicità dei luoghi, l’ambiente con le sue contraddizioni, i caratteri morfologici ed altimetrici, l’andamento del suolo vengono assunti come elementi generatori del progetto.