A Brooklyn lo ziggurat di Oma affacciato sull’East River
A Brooklyn lo ziggurat di Oma affacciato sull’East River
A Brooklyn lo ziggurat di Oma affacciato sull’East River
Le prime torri residenziali di Oma a New York offrono ai loro abitanti invidiabili viste dello skyline di Manhattan dalla sponda est dell’East River.
Il progetto completa il piano di densificazione residenziale – il Greenpoint Landing Masterplan Development – avviato nel 2005 per la riconversione dei 9 ettari dell’area ex-industriale tra Brooklyn e il Queens un tempo chiamata ‘Little Poland’, caratterizzata da case a schiera basse e industrie ai margini del fiume.

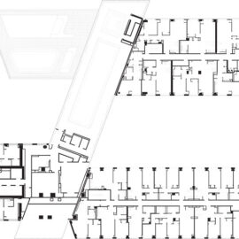
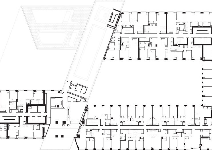
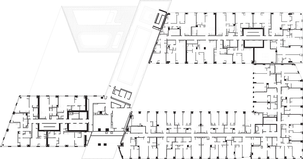
Per risolvere elegantemente il vincolo comunale che per l’area di cantiere prevedeva un’impronta al suolo di 11.000 metri quadrati, minimizzare l’impatto della costruzione sulla morfologia dell’area, aprire il sito all’acqua e soddisfare l’esigenza della proprietà – Brookfield Properties e Park Tower Group – di realizzare 745 unità immobiliari, il 30 per cento dei quali per regolamento comunale a canone agevolato, la sede newyorchese di Oma ha sviluppato un concept che allontana e al tempo stesso avvicina le due torri, con la più alta – 122 metri per 40 piani – che cresce per blocchi di 7 o 8 piani posti a sbalzi di 7,3 metri ciascuno uno sull’altro, come una moderna Ziggurat, e la più bassa (91 metri e 30 piani) che si allarga verso il suolo per affacciarsi su un nuovo parco sul lungomare a nord.

Le separa uno spazio aperto di 18 metri, la dimensione di una strada, e le collegano, al quarto e al sesto livello, due ponti a doppia e tripla altezza che si spingono verso Dupont e Eagle Street e accolgono gli ambienti comuni, locale fitness, area ristorazione, piscina coperta e vasca idromassaggio.
Le torri, contraddistinte da bucature regolari di 2 metri per 3 e da una facciata in pannelli cementizi bianchi scolpiti da scanalature orientate in direzioni alternate blocco per blocco che conferiscono tridimensionalità giocando con le ombre delle diverse ore del giorno, sono sagomate in modo da creare terrazze e sporgenze che le collegano enfaticamente, come se fossero state ritagliate da un unico blocco.

Oltre a favorire la vista sul panorama di Manhattan, l’ampiezza delle finestre massimizza, specie nella torre più bassa, il contatto con l’East River. Il che rende anche la facciata ‘posteriore’, spesso trascurata nei progetti di architettura, un secondo fronte altrettanto distintivo della realizzazione.

La struttura dell’edificio si basa su 4 mega-colonne, sdoppiate alla base, che reggono gli sbalzi della torre più alta, e su colonne inclinate e capriate Vierendeel che scaricano a terra i carichi strutturali senza compromettere l’integrità degli interni degli appartamenti.

Crediti
- Località New York
- Lead Design Architect OMA New York, partner-in-charge Jason Long
- Project Architects Yusef Ali Dennis, Christine Yoon
- Executive Architect Beyer Blinder Belle Architects & Planners
- Unit Interior Designer Beyer Blinder Belle Architects & Planners
- Landscape Architects James Corner Field Operations (waterfront) e Marmol Radziner
- Amenities Interior Designer Marmol Radziner
- Structure DeSimone Consulting Engineers
- Mep e Leed Cosentini Associates
- Facciata Thornton Tomasetti
- Lighting Focus Lighting
- Acustica Cerami Associates
- Ingegneria civile Langan Engineering
- Wayfinding Mtwtf
- Marine Engineering McLaren Engineering Group

Jason Long - OMA New York

Partner di Oma, dove è entrato nel 2003, e co-direttore dal 2014 della sede di New York, Jason Long è stato il project manager del Museo Nazionale del Quebec e del Faena Forum di Miami e si è occupato di numerosi progetti di riconversione in Nord America.
A San Francisco ha supervisionato il progetto e la costruzione della Avery Tower e attualmente sta guidando la costruzione di un complesso di residenze a prezzo convenzionato nello storico quartiere di Haight Ashbury. In corso anche il progetto The Perigon, complesso di torri residenziali sulla spiaggia di Miami.
Laureato in filosofia e con un master in architettura conseguito alla Harvard Gsd, in precedenza Jason Long aveva fatto parte di Amo, il think tank di Oma, ed era stato associate editor di Content (Taschen, 2004) con Rem Koolhaas.



