Il caleidoscopio architettonico di Studio Other Spaces
Il caleidoscopio architettonico di Studio Other Spaces
Il caleidoscopio architettonico di Studio Other Spaces
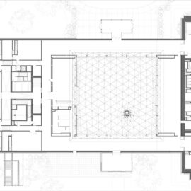
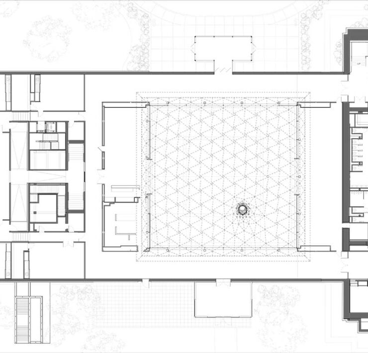
Con la copertura della corte del Seymour H. Knox Building a Buffalo, Studio Other Spaces di Olafur Eliasson e Sebastian Behmann perfeziona l’idea di Massimiliano Fuksas per la nuova fiera di Milano.
Tra scultura e architettura, il tetto di vetro di Common Sky agisce come lenti che amplificano lo spazio e enfatizzano le qualità mutevoli del cielo: il susseguirsi delle stagioni, la luce diffusa, le nuvole. L’alternarsi di pannelli trasparenti e pannelli riflettenti enfatizza quel che avviene sotto la cupola, con i visitatori che, specchiati nei pannelli, diventano parte del caleidoscopio.
La geometria della cupola forma una traiettoria che attraversa il cortile e passa da motivi triangolari ai bordi a un motivo esagonale al centro. In sezione, la struttura è formata da due livelli di superfici speculari alternate, con il vantaggio di riflettere la luce del sole riducendo l’approto solare all’interno. Verso il centro – esattamente come fece Massimiliano Fuksas – la struttura da poi vita a un ‘vortice’, una sorta di imbuto che si incunea fino a toccare terra portando all’interno elementi esterni, pioggia, neve, foglie o semplicemente luce.
«Abbiamo creato un’opera site-specific – afferma l’architetto Sebastian Behmann, co-fondatore di Studio Other Spaces con Olafur Eliasson – che amplifica lo spazio combinandolo con l’idea di una corte moderna creando uno spazio gratuitamente accessibile a tutti in qualsiasi stagione» (in inverno il clima di Buffalo è particolarmente severo).
Common Sky, che si inserisce nel masterplan di ampliamento del campus e del museo condotto da Shohei Shigematsu, partner di Oma alla guida della sede newyorchese dello studio, completa l’addizione modernista del Seymour H. Knox Building, completato nel 1962 su disegno di Gordon Bunshaft, e con la sua forma organica riprende il carattere del luogo e del paesaggio circostante, in particolare degli alberi e dei prati del Delaware Park disegnato a fine Ottocento da Frederick Law Olmsted.
Studio Other Spaces - SOS

Fondato a Berlino nel 2014 dall’artista Olafur Eliasson (a sinistra nella foto) e dall’architetto Sebastian Behmann, Studio Other Spaces sviluppa progetti interdisciplinari che tengono insieme arte e architettura, con particolare riguardo agli spazi pubblici. L’approccio olistico dei progetti, sviluppati con sguardo costante alla prospettiva generale e nello stesso tempo al singolo dettaglio, testimoniano sia l’interesse condiviso dei due fondatori verso la sperimentazione spaziale sia l’attenzione alla realizzazione concreta e alla vita dell’opera fino alla sua dismissione e riuso.
Tra i progetti recenti, oltre a Common Sky ricordiamo il Vertical Panorama Pavilion (2020–22) della cantina vinicola Donum Estate a Sonoma, California; l’installazione artistica permanente The Seeing City (2015–22) agli ultimi due piani dell’edificio di David Chipperfield Morland Mixité Capitale a Parigi; il Lyst Restaurant (2019) sull’acqua del fiordo di Velje in Norvegia. Attualmente in corso ad Addis Abeba il Meles Zenawi Memorial Park, concepito e costruito con i partner etiopi e in collaborazione con Vogt Landscape Architects.
Insieme a sei co-progettisti, Studio Other Spaces partecipò alla 17. Biennale di Architettura di Venezia curata da Hashim Sarkis con la mostra Future Assembly.


