Un luogo di culto come spazio civico: la Højvangen Church di Henning Larsen
Un luogo di culto come spazio civico: la Højvangen Church di Henning Larsen
In un’epoca segnata dalla crescente secolarizzazione e dalla chiusura di molte chiese in Europa, la nuova Højvangen Church si impone come un’eccezione significativa: è la prima costruzione ecclesiastica realizzata a Skanderborg, nella penisola danese dello Jutland, dopo oltre cinquecento anni.
Progettato da Henning Larsen Architects, l’edificio non si limita a rinnovare il linguaggio dell’architettura sacra, ma ne ridefinisce il ruolo nel tessuto sociale e culturale contemporaneo.

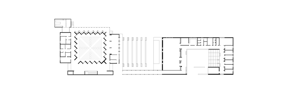
Situata ai margini della cittadina e connessa al centro parrocchiale esistente tramite un corridoio seminterrato, la chiesa si presenta come un padiglione scolpito nel paesaggio.
Nessuna facciata principale o orientamento convenzionale: l’unico elemento fisso è il fonte battesimale, collocato al centro, da cui si aprono viste verso il bosco, il cimitero e la vecchia torre campanaria. Una scelta che esprime l’idea di una chiesa priva di gerarchie e aperta alla collettività.

Eva Ravnborg, Director Henning Larsen, Denmark, ci spiega che «con il progetto Højvangen Church siamo rimasti fedeli alla tradizione teologica, ma reinterpretando la chiesa come spazio capace di accogliere la vita quotidiana e i momenti speciali, la gioia e il lutto, le diverse generazioni. La luce è stata un elemento centrale del progetto: non solo fisico, ma spirituale, in grado di elevare l’esperienza dello spazio oltre l’ordinario».

Il progetto si estende su una superficie di 1.500 metri quadrati e ospita funzioni religiose, eventi culturali e momenti informali di comunità.
I materiali – mattoni, ottone, legno di quercia – creano un’atmosfera calda e senza tempo. Il layout interno consente configurazioni diverse in base alle attività.

Aggiunge Greta Tiedje, Global Design Director di Henning Larsen: «Il nostro obiettivo era disegnare uno spazio che si aprisse da ogni lato. Un luogo che, pur mantenendo intimità e sacralità, fosse inclusivo e capace di accogliere tutti».

All’esterno, la facciata ondulata e permeabile filtra la luce naturale, generando un gioco di chiaroscuri che muta con le ore del giorno.
Nella parte retrostante, un colonnato con piccole nicchie invita alla sosta o alla contemplazione, mentre un parco e un cortile completano l’offerta di spazi aperti destinati all’uso pubblico.

Il progetto ha segnato anche il ritorno dello studio fondato nel 1959 da Henning Larsen al design di arredi dopo sessant’anni, con la creazione della sedia impilabile Ekko, realizzata in collaborazione con il marchio danese Brdr. Krüger.


