Opus e ME Dubai, disegnato da Madame Zaha Hadid
Opus e ME Dubai, disegnato da Madame Zaha Hadid
Opus e ME Dubai, disegnato da Madame Zaha Hadid
Volumi pieni e vuoti, superfici opache e trasparenti, linee rette e curve, materiali innovativi e sostenibili caratterizzano il ME Dubai, aperto recentemente a Dubai: la prima struttura dedicata all’ospitalità del marchio Meliá in Medio Oriente e l’unico hotel realizzato disegnato interamente da Madame Zaha Hadid – il progetto era stato presentato nel 2007.
Situato nel quartiere del Burj Khalifa, il ME Dubai è ospitato all’interno di Opus, avveniristico edificio firmato da Zaha Hadid Architects – guidato ora da Patrik Schumacher – mixid-use che comprende anche uffici, ristoranti, bar e residenze.

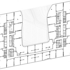
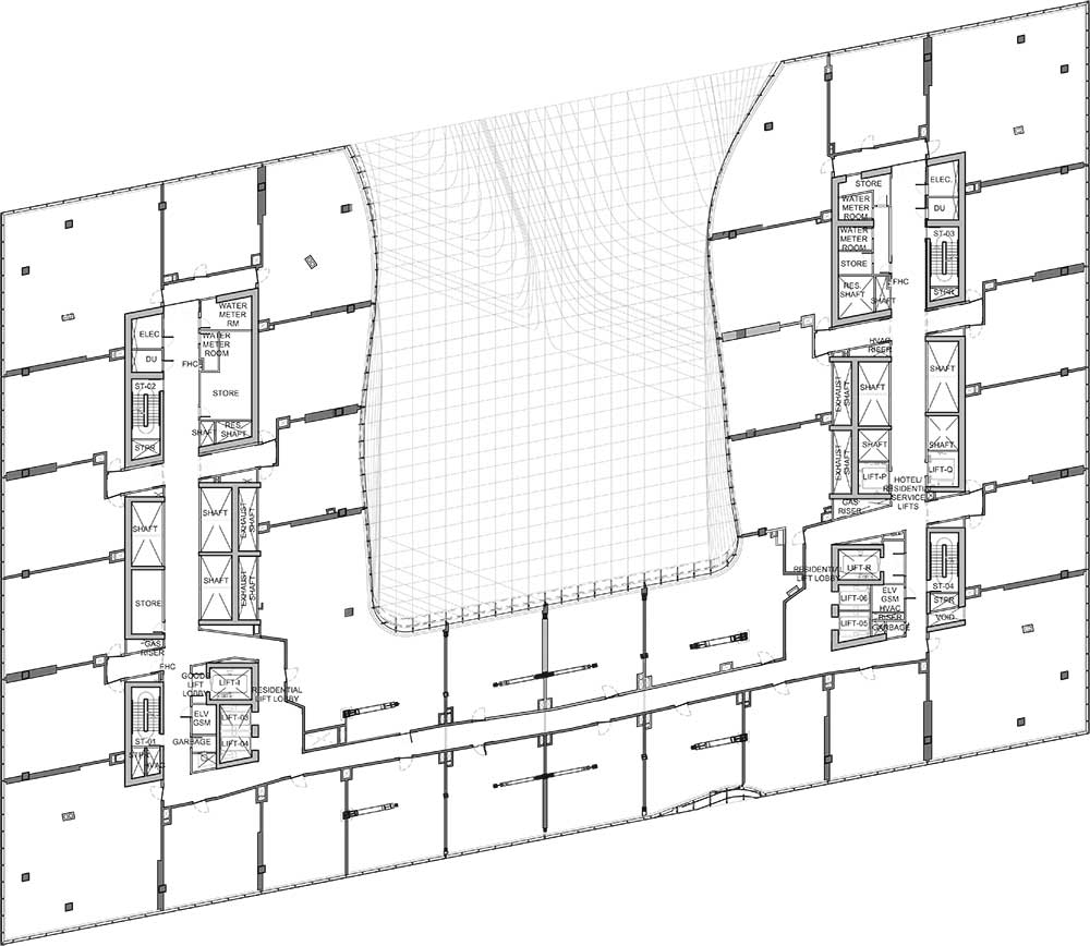
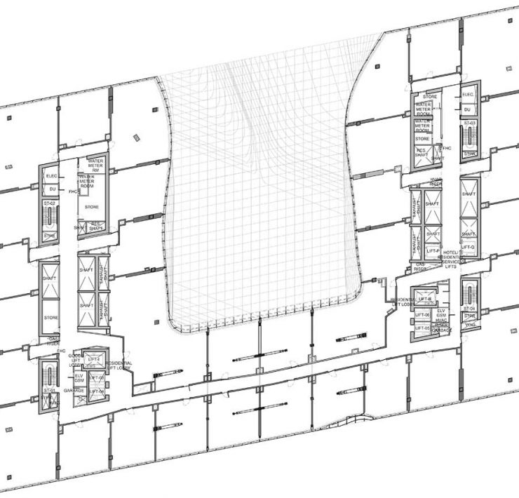
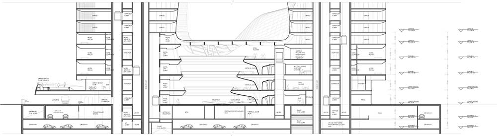
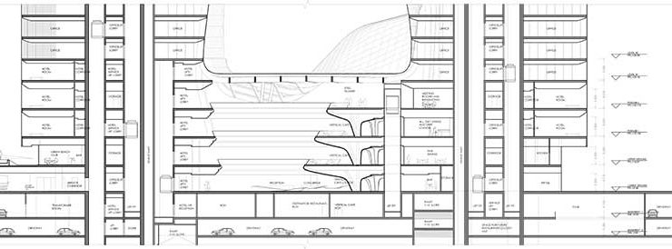
Opus si erge come un massiccio volume scavato da un grande spazio vuoto scolpito, fluido e organico che contrasta nettamente con la geometria ortogonale dell’involucro. L’edificio è costituito da due torri separate alte 93 metri, collegate tra loro da un atrio di quattro piani a livello del suolo, e da un ponte asimmetrico di tre piani largo 38 metri e sospeso a 71 metri di altezza da terra.
La facciata del vuoto è una superficie di 6.000 mq realizzata con 4.300 elementi di vetro piani, a singola o doppia curvatura. La facciata curva è stata progettata utilizzando la modellazione digitale 3D che ha anche identificato zone specifiche che richiedevano vetro temperato.
Durante il giorno, la facciata del cubo riflette il cielo, il sole e la città circostante; di notte, il vuoto è illuminato da un’installazione di luce dinamica di LED controllabili individualmente da ogni pannello di vetro.

Anche tutti gli interni del ME Dubai, compresi gli arredi e i complementi, sono stati progettati personalmente da Zaha Hadid e sono caratterizzati dal suo design riconoscibile che combina linee sinuose e spigoli vivi con forme geometriche essenziali.
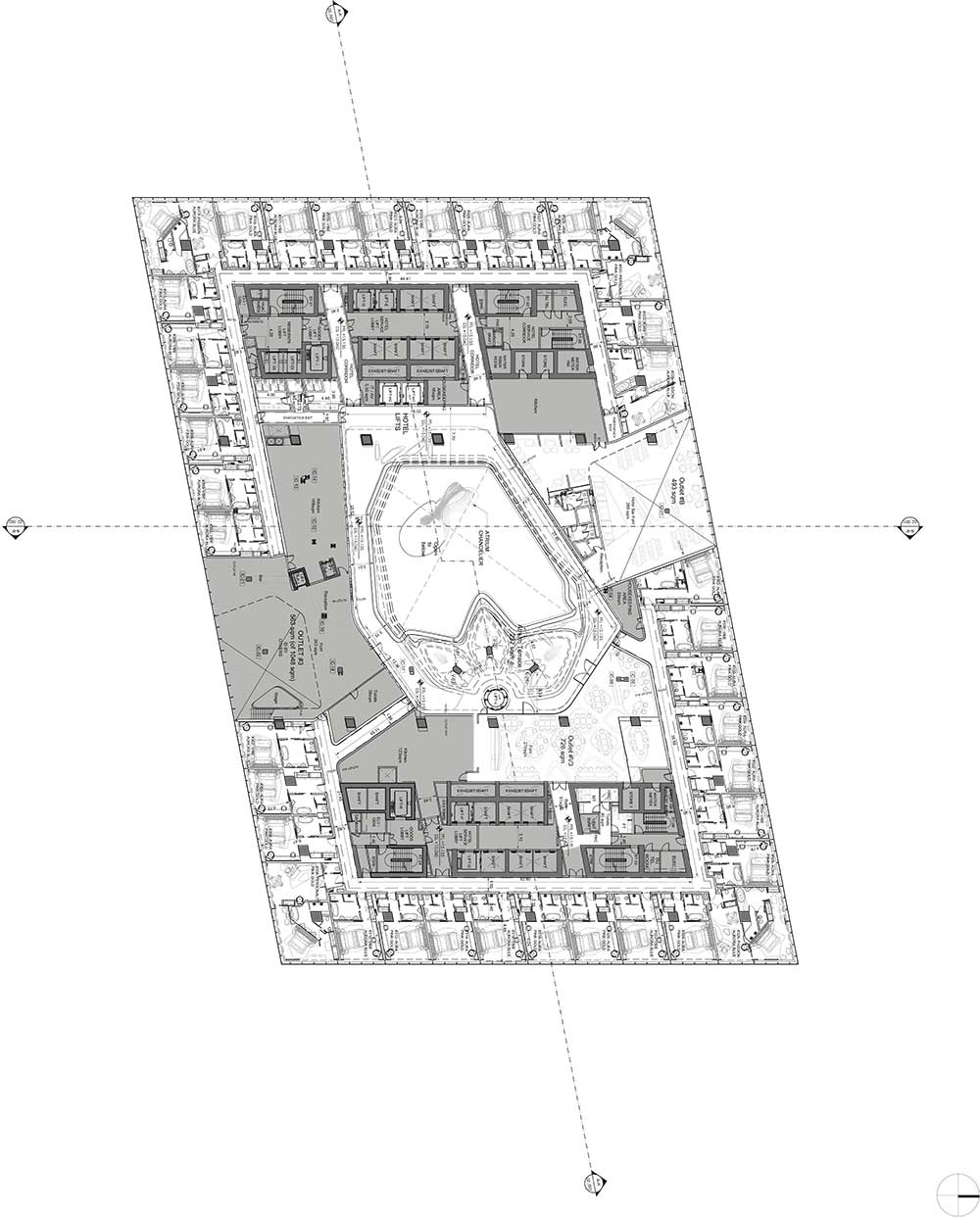
Il ME Dubai ospita 74 camere e 19 suite, che offrono agli ospiti comfort, servizi e tecnologie all’avanguardia in ambienti molto luminosi e spaziosi con spettacolari viste panoramiche sulla città.
Completano la struttura alberghiera una grande hall e una vasta area reception, alcune sale per eventi e riunioni, una spa con un centro fitness e benessere, un ristorante, un roof top bar a bordo piscina.

All’interno di The Opus, la ventilazione e l’illuminazione degli ambienti è regolata automaticamente da sensori che permettono di ridurre gli sprechi energetici. In più, per assicurare comfort e benessere agli ambienti, le facciate del cubo sono costituite da vetrate a doppio vetro isolante con rivestimento protettivo dai raggi UV e con un motivo che riduce l’irraggiamento solare degli interni.




Crediti di progetto
Architettura: Zaha Hadid Architects
Progetto: Zaha Hadid, Patrik Schumacher, Christos Passas
ZHA Design Director: Christos Passas
Team di concorso: Christos Passas (Lead Designer), Paul Peyrer-Heimstaett, Alvin Huang, Daniel Baerlecken, Gemma Douglas, Saleem Al-Jalil
Design Team (Shell and Core): Vincent Nowak (Project Architect), Dimitris Akritopoulos, Javier Ernesto-Lebie, Paul Peyrer-Heimstaett, Sylvia Georgiadou, Phivos Skroumbelos, Marilena Sophocleous, Chiara Ferrari, Thomas Frings, Jesus Garate, Wenyuan Peng
Base Built Supervision Team: Fabian Hecker (Team Leader), Barbara Bochnak (Team Leader), Tomasz Starczewski, Kwanphil Cho, Bruno Pereira, Dimitris Kolonis
Team 1 per l’interior design di hotel e residenze: Reza Esmaeeli, Bozana Komljenovic (Project Leads), Laura Micalizzi, Emily Rohrer (Senior Interior Designers), Veronika Ilinskaya, Eider Fernandez Eibar, Stella Nikolakaki, Bruno Pereira, Raul Forsoni, Thomas Frings, Chrysi Fradellou, Spyridon Kaprinis, Alexandra Fischer, Hendrik Rupp, Vivian Pashiali, Sofia Papageorgiou, Carlos Luna, Christos Sazos, Kwanphil Cho, Andri Shalou, Ben Kikkawa, Melhem Sfeir, Faten el Meri, Eleni Mente (Landscape Designer)
Team 2 per l’interior design di hotel e residenze: Alessio Constantino (Project Lead), Sonia Renehan (Senior Interior Designer), Afsoon Es Haghi, Zsuzsanna Barat, Ekaterina Smirnova, Chafic Zerrouki, Nessma Al Ghoussein, Christina Christodoulidou
Team per gli arredi su misura: Maha Kutay (Project Director), Margarita Valova, Reza Esmaeeli, Raul Forsoni, Bruno Pereira, Carine Posner, Filipa Gomes
Project Management: Gleeds [London], Omniyat [Dubai]
Architetti locali: Arex Consultants [Dubai], BSBG [Dubai]
Ingegneria strutturali: Whitbybird [London], BG&E [Dubai]
Ingegneria MEP: Clarke Samadin [Dubai]
Ingegneria facciata: Whitbybird [London], Agnes Koltay Facades [Dubai]